Подписывайтесь на нас в соцсетях:
Info@akb-nistratov.ru
+7 (423) 274 08 91
Хотите обсудить задачу,
проект или сотрудничество — свяжитесь с нами.
Составим предложение и предоставим консультацию.
156
254
м2
м2
2 санузла
2023
г. Владивосток
4 спальни
Количество санузлов
Жилая площадь
Количество спален
Год реализации
Место реализации
Общая площадь
Интерьер двухэтажного дома из клееного бруса
Мы разработали дизайн интерьера для двухэтажного дома из клееного бруса. Нашей задачей было сохранить атмосферу деревянного дома, но наполнить его светом и сделать современным.

Снаружи дом выглядит традиционно. Внутри мы покрасили стены из бруса в светлые тона, а в некоторых зонах добавили стеновые панели для контраста фактур. Например, в спальне мы сделали акцентную стену панелями под скалу — это добавило интерьеру природной грубоватости.

Центром дома стала гостиная со вторым светом. Мы объединили кухню, столовую и зону отдыха с камином в единое пространство. Панорамные окна в пол стирают грань между интерьером и зоной отдыха на улице. Для семьи с детьми это идеальное решение: все находятся рядом, но при этом никто не мешает друг другу.

Этот проект доказывает, что дом из дерева может быть по-настоящему современным и светлым.
План первого этажа
Таблица помещений
01 Кухня-гостиная 56,3 м2
02 Столовая 17,2 м2
03 Спальня 17,1 м2
04 Прихожая 13,6 м2
05 Кабинет 10,9 м2
06 Санузел 5 м2
07 Кладовая 5 м2
08 Тех. помещение 5 м2
09 Кладовая 4,7 м2
10 Терраса 16 м2
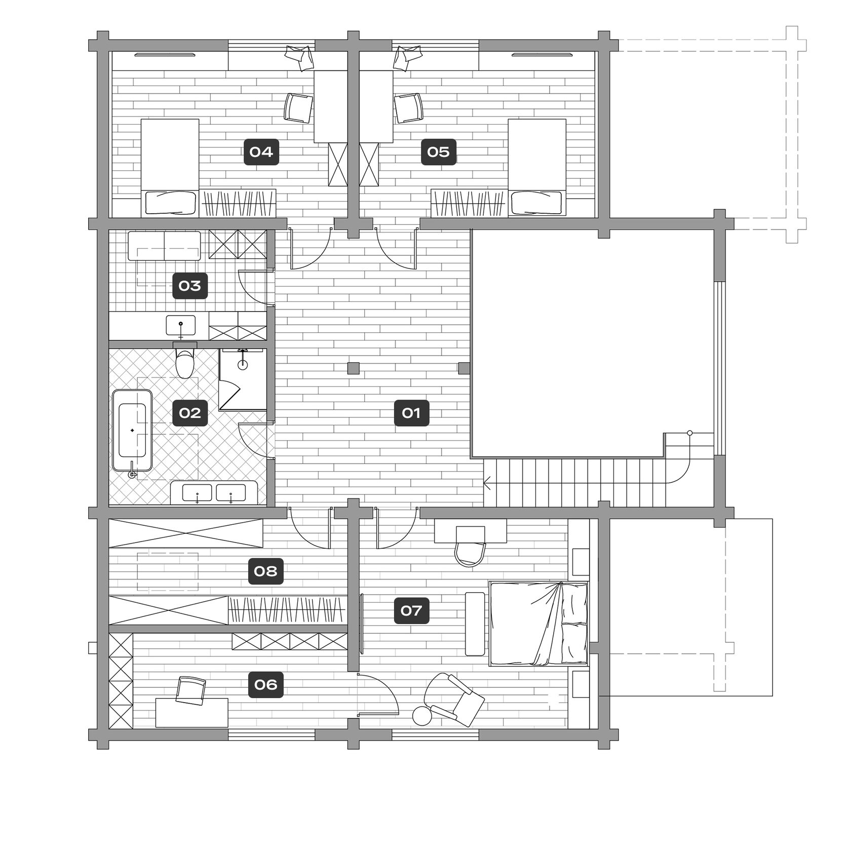
План второго этажа
Таблица помещений
01 Холл 23,3 м2
02 Санузел 10,9 м2
03 Постирочная 7,5 м2
04 Спальня 17,2 м2
05 Спальня 17,2 м2
06 Кабинет 9,9 м2
07 Мастер спальня 20,9 м2
08 Гардероб 10,9 м2