Подписывайтесь на нас в соцсетях:
Info@akb-nistratov.ru
+7 (423) 274 08 91
Хотите обсудить задачу,
проект или сотрудничество — свяжитесь с нами.
Составим предложение и предоставим консультацию.
143
221
м2
м2
3 санузла
2023 г
г. Уссурийск
4 спальни
Количество санузлов
Жилая площадь
Количество спален
Год реализации
Место реализации
Общая площадь
Двухэтажный дом в скандинавском стиле
Мы спроектировали двухэтажный дом в скандинавском стиле. Хотя второй этаж мансардный, мы сделали его полным света. Для этого подняли часть стен выше линии кровли, создав световые фронтоны под панорамные окна. Это решение сформировало сложную асимметричную кровлю, которая придала дому современный и динамичный облик. Фасад облицован деревом, фальцем и фиброцементными панелями, а угловые окна в нескольких местах стирают границу между внутренним пространством и участком.

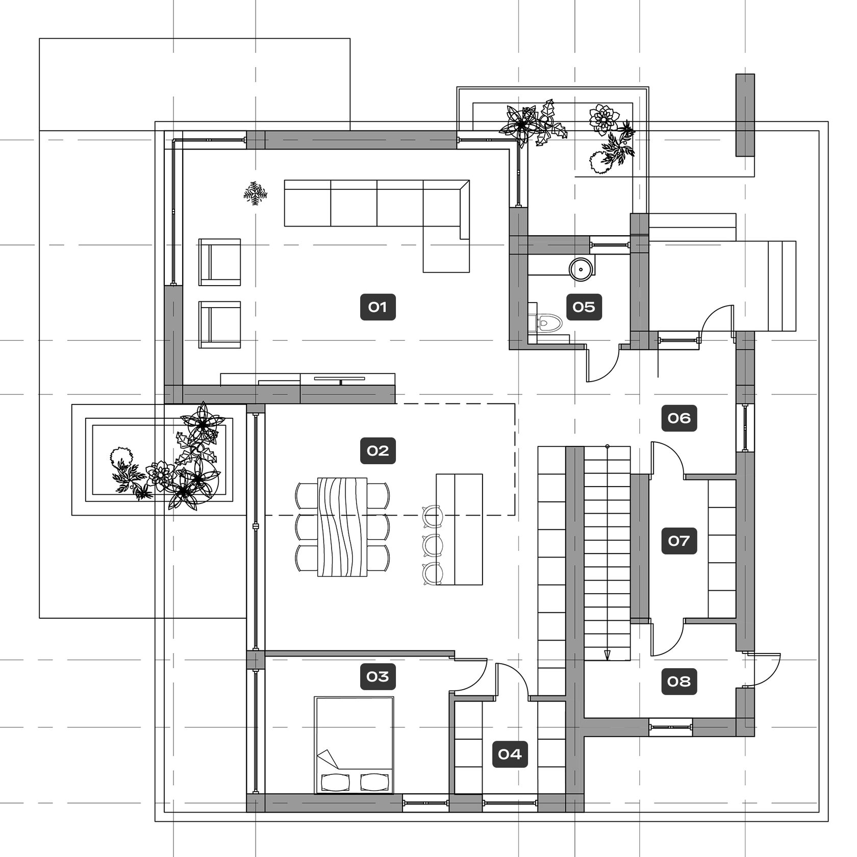
Планировка четко разделена: на первом этаже — изолированные гостиная, кухня-столовая, гостевая спальня и санузел. На втором этаже, освещенном вторым светом, находится мастер-спальня с собственной ванной и две детские с отдельным санузлом. Баня и бассейн объединены в одно пространство и связаны дорожками с домом и зоной барбекю. Рядом с домом обустроили деревянную террасу и площадку для отдыха.
План первого этажа
Таблица помещений
01 Гостиная 27,6 м2
02 Кухня столовая 39,7 м2
03 Спальня 11,9 м2
04 Гардероб 4,8 м2
05 Санузел 4,2 м2
06 Прихожая 10,9 м2
07 Гардероб 7,7 м2
08 Тех. помещение 9,5 м2
План второго этажа
Таблица помещений
01 Спальня 20,1 м2
02 Спальня 19,5 м2
03 Холл 25,6 м2
04 Спальня 24,8 м2
05 Санузел 6,4 м2
06 Санузел 8,2 м2
Благоустройство
План участка
Таблица помещений
01 Дом
02 Гараж
03 Баня
04 Бассейн
05 Зона барбекю