Подписывайтесь на нас в соцсетях:
Info@akb-nistratov.ru
+7 (423) 274 08 91
Хотите обсудить задачу,
проект или сотрудничество — свяжитесь с нами.
Составим предложение и предоставим консультацию.
540
844
м2
м2
2023 г
г. Владивосток
Площадь застройки
Год реализации
Место реализации
Общая площадь
Проект банного комплекса в японском стиле
Мы спроектировали банный комплекс в японском стиле как целостный архитектурный ансамбль. Двухэтажное здание с крытыми верандами и террасами органично вписано в рельеф участка с небольшим перепадом высот.

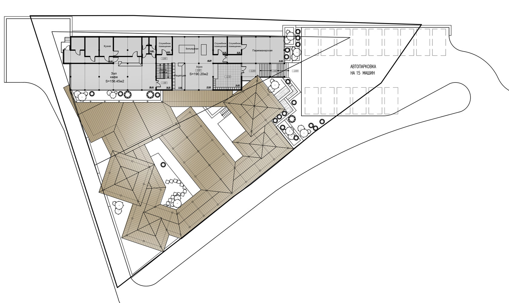
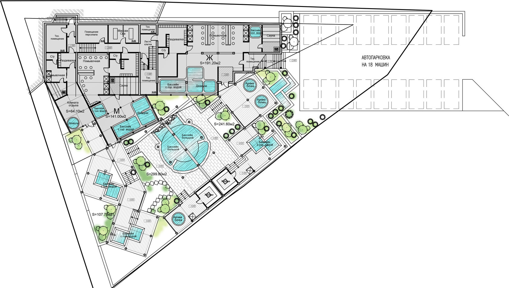
На первом этаже расположены раздельные мужское и женское отделения с бассейнами, саунами, хамамами и помывочными. Второй этаж отведен под общие зоны: кафе, бильярдную, парикмахерскую и барбершоп. Внешняя территория организована как многоуровневое пространство с бассейнами, аромабочками и зонами отдыха, соединенными сетью дорожек и лестниц.

Архитектура выдержана в традиционном японском стиле с характерными кровлями, обширным использованием дерева в отделке и гармоничным соединением интерьеров с окружающим ландшафтом через систему крытых террас. Проектом также предусмотрена парковочная зона.
План первого этажа
План второго этажа