Подписывайтесь на нас в соцсетях:
Info@akb-nistratov.ru
+7 (423) 274 08 91
Хотите обсудить задачу,
проект или сотрудничество — свяжитесь с нами.
Составим предложение и предоставим консультацию.
148
246
м2
м2
3 санузла
2025 г
г. Артем
3 спальни
Количество санузлов
Жилая площадь
Количество спален
Год реализации
Место реализации
Общая площадь
Двухэтажный дом в современном стиле с благоустройством
Мы спроектировали двухэтажный дом в современном стиле. Его архитектура основана на двух прямоугольных объёмах, соединённых остеклённым переходом-галереей. Из этого перехода открывается вид на обе стороны участка. Второй этаж одного из крыл выступает над первым, создавая выразительный навес. Фасады собраны из разных материалов — фиброцементных панелей под кирпич, дерева и чёрной рейки, что добавляет игре фактур.

Участок с перепадом рельефа мы превратили в многоуровневое пространство. Небольшие бетонные лестницы и дорожки связывают зоны отдыха с деревянными настилами. Отдельный гараж, баня с бассейном и беседка с барбекю образуют единый комплекс, а дом с большой террасой создаёт свою зону. Мы наполнили территорию деталями — растениями, фактурными ограждениями — и собрали их в целостную и интересную картину, где нет ощущения пустоты.
План первого этажа
Таблица помещений
01 Кухня-столовая 34,9 м2
02 Гостиная 37,1 м2
03 Кладовая 4,3 м2
04 Тех. помещение 6,6 м2
05 Коридор 12,2 м2
06 Прихожая 9,5 м2
07 Гардероб 7,1 м2
08 Санузел 4,6 м2
09 Тамбур 7,5 м2
План второго этажа
Таблица помещений
01 Спальня 20,1 м2
02 Спальня 15,1 м2
03 Кабинет 15,5 м2
04 Санузел 12 м2
05 Коридор 20,3 м2
06 Спальня 25,3 м2
07 Гардероб 7,6 м2
08 Санузел 6,7 м2
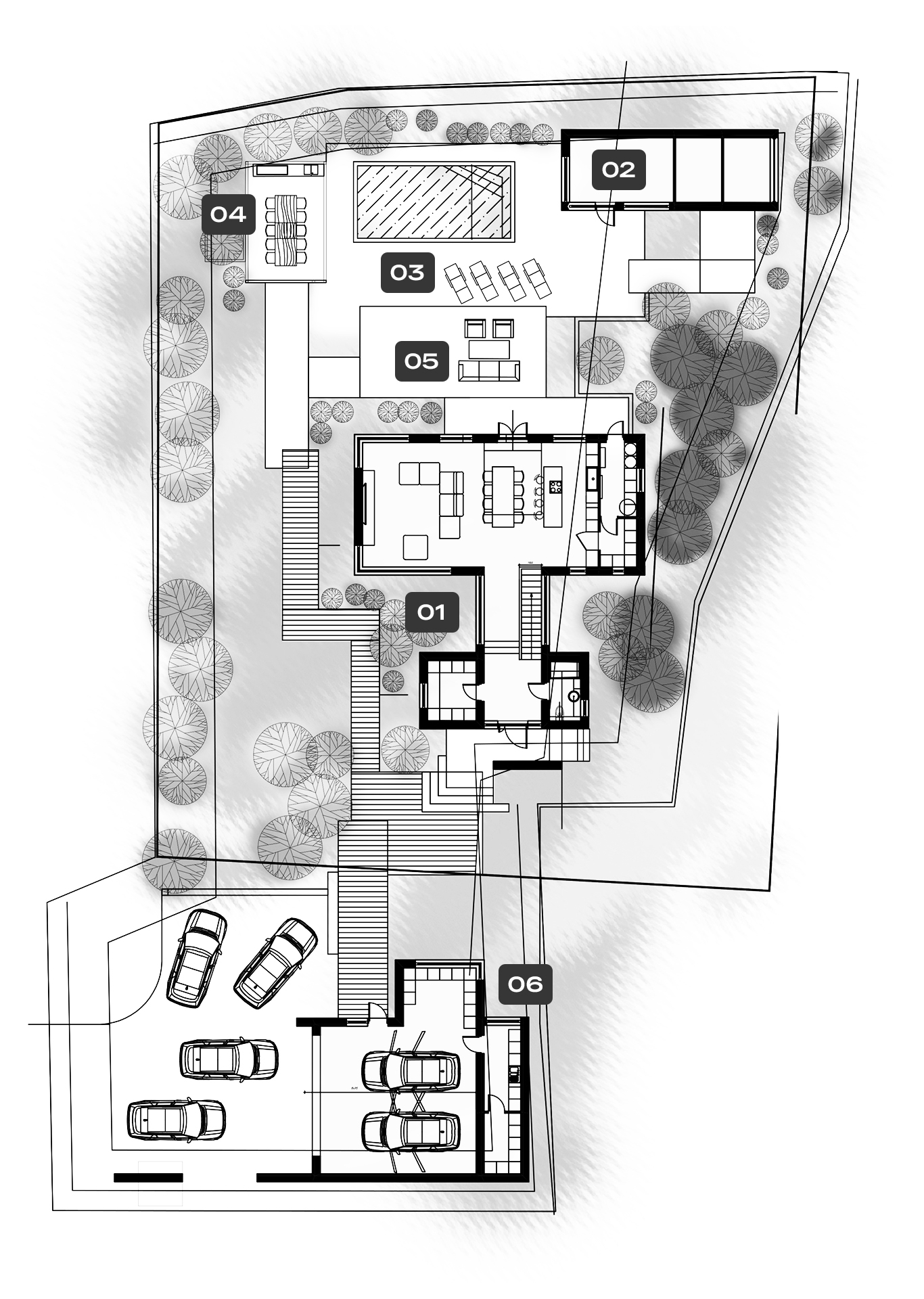
Благоустройство
План участка
Таблица помещений
01 Дом
02 Баня
03 Бассейн
04 Зона барбекю
05 Зона отдыха
06 Гараж