Подписывайтесь на нас в соцсетях:
Info@akb-nistratov.ru
+7 (423) 274 08 91
Хотите обсудить задачу,
проект или сотрудничество — свяжитесь с нами.
Составим предложение и предоставим консультацию.
114
194
м2
м2
4 санузла
2025 г
г. Владивосток
2 спальни
Количество санузлов
Жилая площадь
Количество спален
Год реализации
Место реализации
Общая площадь
Трехэтажный дом из лодочного гаража с благоустройством
Мы построили этот трёхэтажный дом на берегу моря на месте старого лодочного гаража. Участок был очень узким, поэтому решение строить вверх стало единственно верным. Чтобы увеличить территорию, мы искусственно отсыпали берег большими камнями, создав собственный пляж.

Из-за перепада высот цокольный этаж с сауной и комнатой отдыха имеет прямой выход через панорамные окна на пляж. Главный вход находится на втором этаже, где расположена кухня-гостиная. Все этажи связывает стеклянный лифт. Фасад обшит фиброцементными панелями, а в зоне благоустройства мы использовали бетон и дерево, разместив там бассейн, беседку и мангальную зону. Объект получился очень атмосферным благодаря непосредственной близости к воде и продуманной планировке.
План цокольного этажа
Таблица помещений
01 Комната отдыха 41,5 м2
02 Коридор 23,8 м2
03 Сауна 5,6 м2
04 Санузел 4,3 м2
05 Постирочная 2,8 м2
06 Тех. помещение 3,2 м2
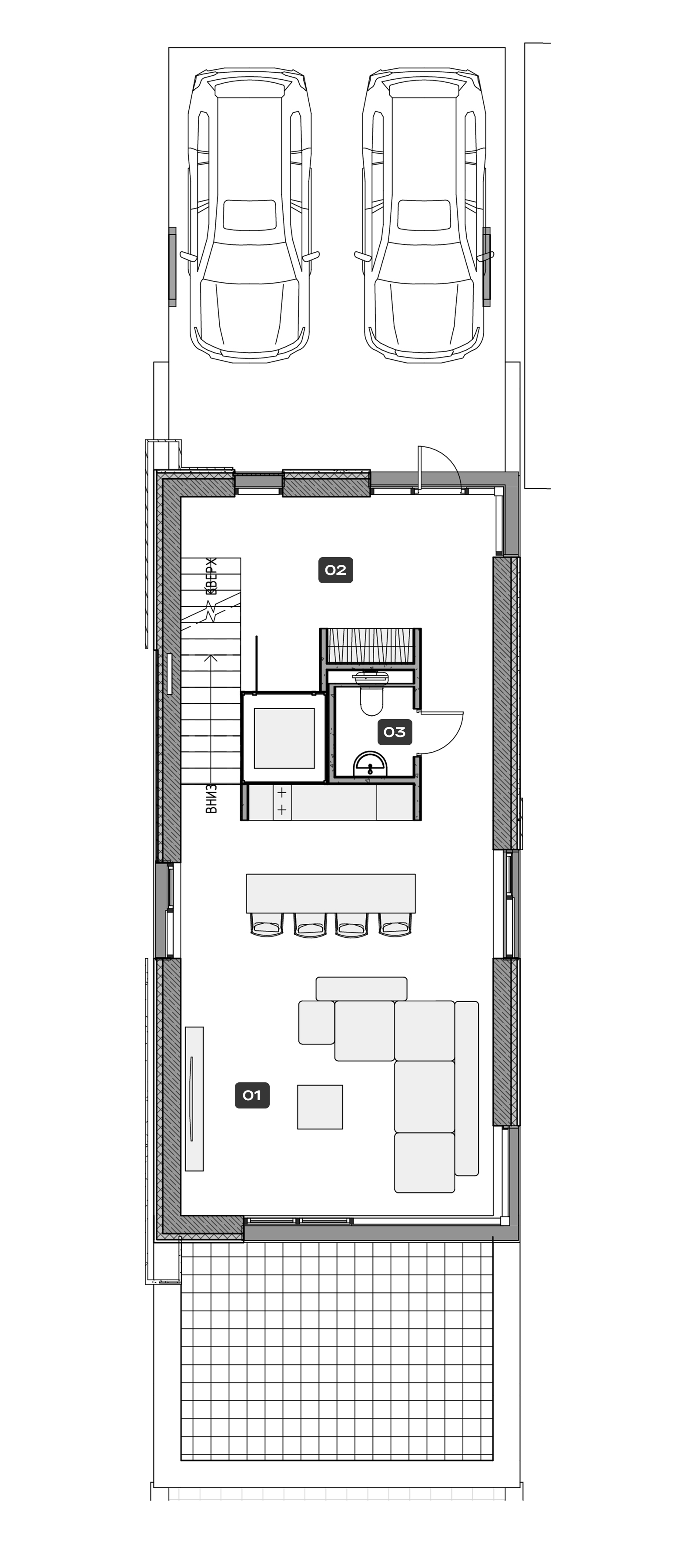
План первого этажа
Таблица помещений
01 Гостиная 37,6 м2
02 Прихожая 20,5 м2
03 Санузел 2 м2
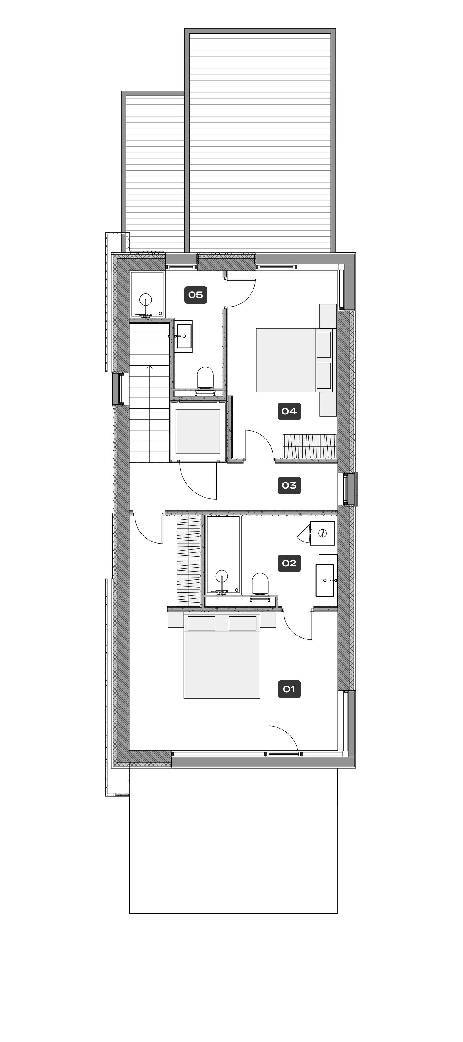
План второго этажа
Таблица помещений
01 Спальня 22,2 м2
02 Санузен 7 м2
03 Коридор 6,2 м2
04 Спальня 12,7 м2
05 Санузел 4,8 м2