Подписывайтесь на нас в соцсетях:
Info@akb-nistratov.ru
+7 (423) 274 08 91
Хотите обсудить задачу,
проект или сотрудничество — свяжитесь с нами.
Составим предложение и предоставим консультацию.
234
245
м2
м2
143 м2
2022 г
г. Сочи
139 м2
Жилая площадь первого дома
Общая площадь второго дома
Жилая площадь первого дома
Год реализации
Место реализации
Общая площадь первого дома
Проект двух двухэтажных домов с благоустройством
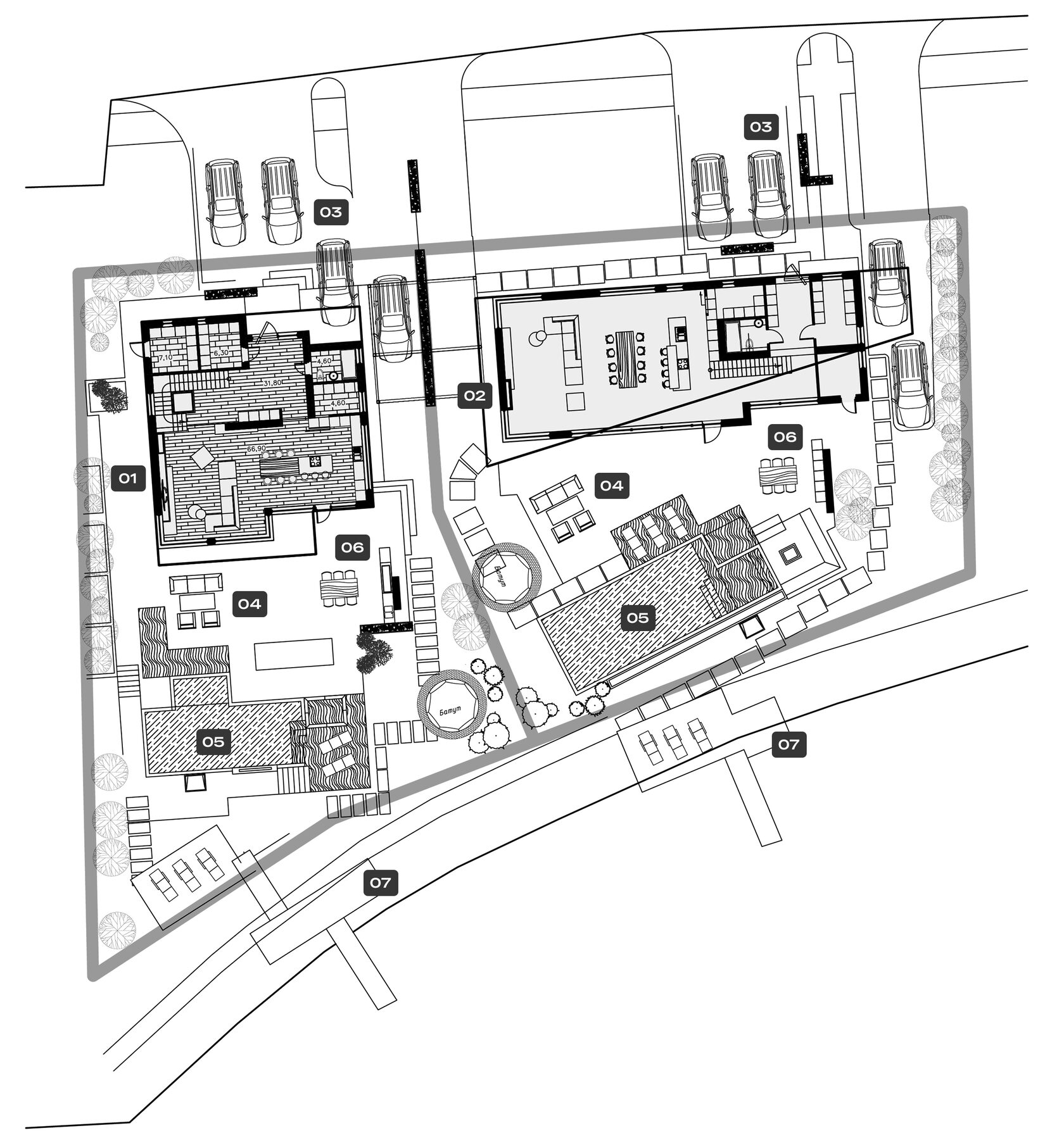
Мы спроектировали два двухэтажных дома для постоянного проживания на участке в Сочи, на берегу реки. Участок разделили на две части, чтобы каждый дом получил свою парковку, приватную территорию с бассейном, мангальной зоной и небольшим пирсом.

Из-за градостроительных ограничений дома имеют разную форму: один — классический прямоугольный, второй — вытянутый, трапециевидный. Это позволило максимально использовать площадь. Все главные помещения ориентированы на реку: панорамные окна на обоих этажах открывают видовые панорамы. В одном доме мы сделали второй свет в холле, чтобы усилить ощущение простора, а во втором — большой балкон на втором этаже.

Дома построены с плоской кровлей, фасады отделаны панелями и деревом. Внутри предусмотрены лифты и парадные лестницы. Мы создали проект, где архитектура, комфорт и уникальная локация работают вместе.
дом №1
План первого этажа
Таблица помещений
01 Кухня-гостиная 66,9 м2
02 Прихожая 31,8 м2
03 Санузел 4,6 м2
04 Постирочная 4,6 м2
05 Гардероб 6,3 м2
06 Тех. помещение 7,1 м2
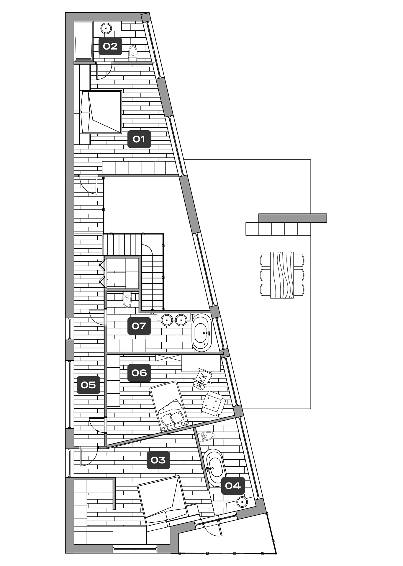
План второго этажа
Таблица помещений
01 Спальня 24,1 м2
02 Санузел 5,7 м2
03 Холл 18,1 м2
04 Санузел 12,2 м2
05 Спальня 24,4 м2
06 Спальня 23,7 м2
05 Санузел 16 м2
Дом №2
План первого этажа
Таблица помещений
01 Кухня-гостиная 67 м2
02 Постирочная 5,4 м2
03 Санузел 5,5 м2
04 Холл 31 м2
05 Гардероб 6,5 м2
06 Тех. помещение 6,2 м2
План второго этажа
Таблица помещений
01 Спальня 21,4 м2
02 Санузел 6,3 м2
03 Спальня 27 м2
04 Санузел 8,8 м2
05 Коридор 17,2 м2
06 Спальня 19,7 м2
06 Санузел 10,5 м2
Благоустройство
План участка
Таблица помещений
01 Дом №1
02 Дом №2
03 Парковка
04 Зона отдыха
05 Бассейн
06 Зона барбекю
06 Пирс