Подписывайтесь на нас в соцсетях:
Info@akb-nistratov.ru
+7 (423) 274 08 91
Хотите обсудить задачу,
проект или сотрудничество — свяжитесь с нами.
Составим предложение и предоставим консультацию.
110
165
м2
м2
2 санузла
2022 г
г. Большой камень
4 спальни
Количество санузлов
Жилая площадь
Количество спален
Год реализации
Место реализации
Общая площадь
Одноэтажный дом в современном стиле с бассейном
Мы проектировали этот одноэтажный дом для семьи с двумя детьми. Главной идеей было создать современное пространство, где стирается грань между интерьером и участком. Из объединенной кухни-гостиной через панорамные окна открывается вид на веранду и уличный бассейн.

Хозяева получили свою мастер-спальню с гардеробной, санузлом и отдельным выходом на террасу. Для детей и гостей предусмотрены три отдельные спальни. Плоская кровля дома плавно переходит в навес, который объединяет две зоны: веранду с мангалом и площадку у бани. Они образуют единое пространство с деревянным покрытием, идеальное для отдыха.

Дорожки из камня и бетона огибают дом, связывая входную группу, парковку, бассейн и зону отдыха в единую логистическую схему.
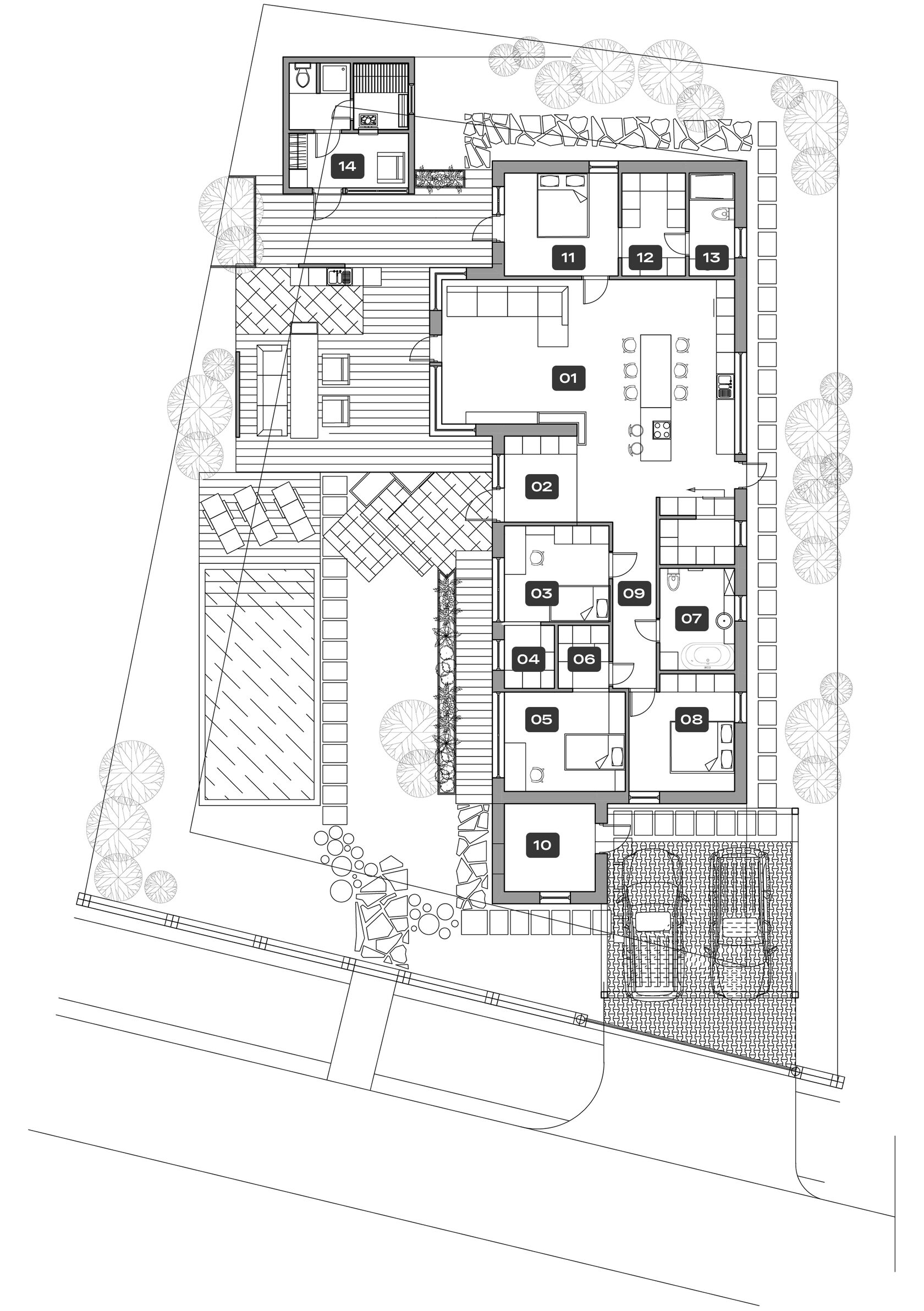
План первого этажа
Таблица помещений
01 Кухня-гостиная 61 м2
02 Прихожая 6,8 м2
03 Спальня 10,9 м2
04 Гардероб 3,4 м2
05 Спальня 13,1 м2
06 Гардероб 3,4 м2
07 Санузел 8,3 м2
08 Спальня 12,9 м2
09 Коридор 8,4 м2
10 Тех. помещение 8,7 м2
11 Спальня 12,7 м2
12 Гардероб 7,1 м2
13 Санузел 5 м2
14 Баня 15,4 м2